德阳市民通数字科技有限公司
办公室装修项目竞争性磋商公告
根据德阳市民通数字科技有限公司《采购管理办法》,为规范办公管理和优化办公条件,现需对我公司办公室进行设计、装修并提供装修所需材料(包工包料)。我公司拟通过竞争性磋商的方式确定供应商为我公司提供设计、装修服务。我公司作为该项目的磋商邀请人,现诚邀符合条件的供应商进行磋商,为本公司提供相关服务。
一、采购项目基本情况
(一)项目编号:DYSMT-2021002
(二)项目名称:德阳市民通数字科技有限公司办公室装修项目
(三)磋商内容:确定本次采购项目供应商,并根据项目要求提供设计、装修服务。
(四)评审方法:综合评审。
(五)本项目的预算: 20万元人民币。
(六)服务期限及地点:
服务期限:收到中标通知或签订合同后10日完成装修服务;服务地点:德阳市旌阳区旌南大厦(发展集团)1212办公室。
二、磋商申请人资格要求
(一)具有独立承担民事责任的能力;
(二)具有良好的商业信誉和健全的财务会计制度;
(三)具有履行合同所必须的设备和专业技术能力;
(四)具有履行本合同所需的专业资质;
(五)具有依法缴纳税收和社会保障资金的良好记录;
(六)参加本次采购活动前三年内,在经营活动中没有重大违法记录;
(七)法律、行政法规规定的其他条件;
(八)本项目不允许联合体磋商。
三、装修内容
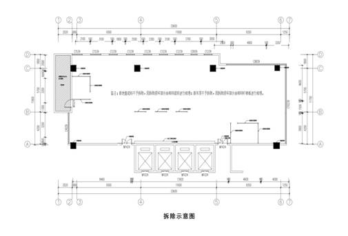
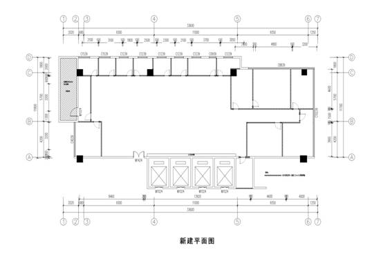
(一)装修平面图:


(二)具体工程预算如下:
序号 | 项目名称 | 单 | 工程量 |
1 | 部分拆除(原大门处木质护墙拆除,原玻璃隔墙拆除) | 项 | 1.0 |
2 | 踢脚线(80mm原木色实木踢脚线) | m | 175.5 |
3 | 矿棉板修缮(原矿棉板因拆除后需修缮部分) | 项 | 1.0 |
4 | 隔墙(轻钢龙骨+双面9.5mm纸面石膏板隔墙) | ㎡ | 129.0 |
5 | 玻璃钢结构隔墙(不锈钢饰面)(50*100*2mm镀锌矩管焊接处理,10mm钢化玻璃(清波),1mm防指纹亚光黑钛不锈钢,很截面之和300mm内(高度做到2.2m,2.2m到顶为悬空)) | ㎡ | 89.6 |
6 | 不锈钢门套(18mm阻燃板门套,1mm防指纹亚光黑钛不锈钢,很截面之和300mm内) | m | 36.9 |
7 | 地弹门(12mm钢化玻璃+五金配件+拉手) | 套 | 16.0 |
8 | 乳胶漆饰面(石膏找平+腻子找平+一底两面) | ㎡ | 573.3 |
9 | 强电改造弱电改造(强电+插座) | ㎡ | 372.0 |
10 | 日常清洁 | ㎡ | 372.0 |
11 | 垃圾外运 | ㎡ | 372.0 |
12 | 脚手架租赁(1.指在三米以上作业面作业。2.需搭设施工脚手架的增加费用,按超高作业区域计算。) | ㎡ | 372.0 |
13 | 开荒保洁 | ㎡ | 372.0 |
14 | 材料搬运(含100T吊车费用2个台班) | ㎡ | 372.0 |
四、响应文件要求
(一)响应文件组成
1、承诺函;
2、法定代表人证明;
3、法定代表人授权书;
4、报价表;
5、分项报价明细表;
6、供应商基本情况表;
7、磋商供应商类似项目业绩一览表;
8、中小企业声明函;
9、服务方案;
10、供应商认为需要提交的其他相关文件。
(二)响应文件的编制
1、响应文件版式用A4纸(附图、附表除外),文字用中文简体。所有文字、图表必须清晰可辨。如有必要,可以增加附页,作为响应文件的组成部分。响应文件应按第四条第(一)款的顺序,连续页码进行编制。
2、响应文件应当对磋商文件有关服务期限、服务地点、服务标准和要求、磋商内容等实质性内容作出响应。
3、响应文件应用不褪色的材料书写或打印,并由供应商的法定代表人或其被授权人签字并盖单位章。委托代理人签字的,响应文件应附授权委托书。响应文件应避免涂改、行间插字或删除,如果出现上述情况,改动之处应加盖单位章或由供应商的法定代表人或其授权的代理人签字确认。
4、响应文件正本一份,副本二份。正本和副本的封面上应清楚地标记“正本”或“副本”的字样,当正本与副本不一致时,以纸质正本为准。
5、响应文件的正本与副本应分别装订成册,并编制目录,采用胶订、平订或线订等,不得采用活页装订方式。
五、响应文件提交时间及地点
(一)提交响应文件的截止时间为2020年1月30日17时00分,按上述要求现场提交。
(二)响应文件提交地点:德阳市旌阳区旌南大厦(发展集团)1212办公室。
(三)逾期送达或未按要求送达指定地点的响应文件,不予受理。
(四)联系人:边女士;联系电话:18383811711;邮箱:624811879@qq.com
德阳市民通数字科技有限公司
2020年1月20日
附件:
一、承诺函
承诺函
德阳市民通数字科技有限公司:
我公司作为本次装修项目的磋商供应商,根据磋商文件要求,现郑重承诺如下:
一、具备《中华人民共和国政府采购法》第二十二条第一款和本项目规定的条件:
(一)具有独立承担民事责任的能力;
(二)具有良好的商业信誉和健全的财务会计制度;
(三)具有履行合同所必需的设备和专业技术能力;
(四)具有履行本合同所需的专业资质;
(五)有依法缴纳税收和社会保障资金的良好记录;
(六)参加本次采购活动前三年内,在经营活动中没有重大违法记录;
(七)法律、行政法规规定的其他条件;
(八)我公司承诺收到中标通知或签订合同后 10 天内完成装修服务及验收工作。
(九)根据装修项目提出的特殊条件。
二、完全接受和满足本项目磋商文件中规定的实质性要求,如对磋商文件有异议,已经在磋商截止时间届满前依法进行维权救济,不存在对磋商文件有异议的同时又参加磋商以求侥幸成交或者为实现其他非法目的的行为。
三、参加本次磋商活动,不存在与单位负责人为同一人或者存在直接控股、管理关系的其他供应商参与同一合同项下的政府采购活动的行为。
四、参加本次磋商活动,不存在和其他供应商在同一合同项下的采购项目中,同时委托同一个自然人、同一家庭的人员、同一单位的人员作为代理人的行为。
五、如果有《四川省政府采购当事人诚信管理办法》(川财采[2015]33 号)规定的记入诚信档案的失信行为,将在磋商文件中全面如实反映。我公司(有、无)记入诚信档案的失信行为。
六、响应文件中提供的能够给予我公司带来优惠、好处的任何材料资料和技术、服务、商务等响应承诺情况都是真实的、有效的、合法的。
七、我单位及其现任法定代表人、主要负责人(有、无)行贿犯罪记录。
本公司对上述承诺的内容事项真实性负责。如经查实上述承诺的内容事项存在虚假,我公司愿意接受以提供虚假材料谋取成交追究法律责任。
磋商供应商名称: (盖章)
法定代表人(签字或盖章)或授权代表(签字):
磋商日期: 年 月 日
二、公司授权委托书
2.1 法定代表人证明
法定代表人证明
磋商供应商名称:
单位性质:
地址:
成立时间: 年 月 日
经营期限:
姓名: 性别: 年龄:
职务: 系 的法定代表人。
特此证明!
附:法定代表人身份证复印件(正反面)。
磋商供应商名称: (加盖公章)
磋商日期: 年 月 日
2.2法定代表人授权书
法定代表人授权书
德阳市民通数字科技有限公司:
本授权声明: (磋商供应商名称) (法定代表人姓名、职务)授权 (被授权人姓名、职务)为我方“ ”项目,采购编号: 采购活动的合法代表,以我方名义全权处理该项目有关磋商、签订合同以及执行合同等一切事宜。本授权书于 年 月 日签字生效。
代理人无转委托权。
特此声明。
附:被授权人有效身份证复印件(正反面)
法定代表人签字:
授权代表签字:
磋商供应商名称: (加盖公章)
磋商日期: 年 月 日
说明:如法定代表人亲自参加磋商的,则不需要提供此材料。
三、报价文件
3.1 报价表
项目名称 |
|
项目编号 |
|
服务期限 |
|
合计 | ¥ ;大写: 。 |
备注: | |
注:1. 报价应系工程设计图、平面图、360度效果图、材料、施工设备、运输、人工、税费、验收合格后的总价,包括完成装修所需一切费用。
2.“报价表”为多页的,每页均需由法定代表人或授权代表签字或者加盖个人名章并盖供应商印章。
磋商供应商名称: (盖章)
法定代表人(签字或盖章)或授权代表(签字):
磋商日期: 年 月 日
3.2 分项报价明细表
项目名称:
采购编号:
序号 | 项目内容 | 单项价格(元/台) | 合计价格(元) |
1 |
|
|
|
2 |
|
|
|
3 |
|
|
|
合计(单位:元) |
| ||
注:1. 报价应系工程设计图、平面图、360度效果图、材料、、施工设备、运输、人工、税费、验收合格后的总价,包括完成装修所需一切费用。
2.“分项报价明细表”为多页的,每页均需由法定代表人或授权代表签字或者加盖个人名章并盖供应商印章。
磋商供应商名称: (盖章)
法定代表人(签字或盖章)或授权代表(签字):
磋商日期: 年 月 日
四、报价单位基本情况表
供应商基本情况表
项目名称:
采购编号:
磋商供应商名称 |
| ||||||
注册地址 |
| 邮政编码 |
| ||||
联系方式 | 联系人 |
| 电话 |
| |||
传真 |
| 网址 |
| ||||
组织结构 |
| ||||||
法定代表人 | 姓名 |
| 技术职称 |
| 电话 |
| |
技术负责人 | 姓名 |
| 技术职称 |
| 电话 |
| |
成立时间 |
| 员工总人数: | |||||
企业资质等级 |
| 其中 | 项目经理 |
| |||
营业执照号 |
| 高级职称人员 |
| ||||
注册资金 |
| 中级职称人员 |
| ||||
开户银行 |
| 初级职称人员 |
| ||||
账号 |
| 技工 |
| ||||
经营范围 |
| ||||||
备注 |
| ||||||
注:1、应附供应商营业执照副本、税务登记、年检合格证明、无违法违规记录声明、企业资质等级证书;2、事业单位或团体组织磋商根据实际情况据实填写此表,若未填报完善不影响磋商资质及效力。3、空白项用“/”填写。
磋商供应商名称: (盖章)
法定代表人(签字或盖章)或授权代表(签字):
磋商日期: 年 月 日
五、工作业绩情况
磋商供应商类似项目业绩一览表
项目名称:
采购编号:
年份 | 用户名称 | 项目名称 | 完成时间 | 合同金额 | 完成项目质量 | 备注 |
|
|
|
|
|
|
|
|
|
|
|
|
|
|
|
|
|
|
|
|
|
|
|
|
|
|
|
|
|
|
|
|
|
|
|
|
|
|
|
|
|
|
|
|
|
|
|
|
|
注:磋商供应商以上业绩需提供有关书面证明材料。“合同金额”需提供合同复印件。
磋商供应商名称: (盖章)
法定代表人(签字或盖章)或授权代表(签字):
磋商日期: 年 月 日
六、中小企业声明函
中小企业声明函
本公司郑重声明,根据《政府采购促进中小企业发展暂行办法》(财库[2011]181 号)的规定,本公司为______(请填写:中型、小型、微型)企业。即,本公司同时满足以下条件:
根据《工业和信息化部、国家统计局、国家发展和改革委员会、财政部关于印发中小企业划型标准规定的通知》(工信部联企业[2011]300 号)规定的划分标准,本公司为______(请填写:中型、小型、微型)企业。
本公司对上述声明的真实性负责。如有虚假,将依法承担相应责任。
说明:
1、如未提供中小企业声明函的,则其磋商中的小型、微型企业不能享受磋商文件规定的价格扣除,但不影响供应商响应文件的有效性。
2、非中、小型、微型企业不提供本声明。
磋商供应商名称: (盖章)
法定代表人(签字或盖章)或授权代表(签字):
磋商日期: 年 月 日
七、磋商响应文件封面及密封袋格式
正本或副本 |
响应文件
项目名称:
项目编号:
磋商供应商名称:
磋商日期:
注:本项目密封袋可不显示正本或副本(该条款不显示在响应文件封面及密封袋)
八、综合评分表
序号 | 评分因素及权重 | 分值 | 评分标准 | 说明 | |
1 | 报价 40% | 40 | 以本次有效的最低投标报价为基准价,投标报价得分=(基准价/投标报价)*40 分 | 共同评审因素 | |
2 | 服务方案报价40% | 进场时间 10% | 20 | (1)一天内进场得 20分; (2)一天以上,三天以内进场得10 分; (3)三天以上,五天以内进场得5 分。 (4)五天以上进场的,得0分 |
|
装修进度计划 10%
| 10 | (1)五天内完成装修得 10 分; (2)七天内完成装修得5 分; (3)十天内完成装修得 2 分; (4)十天以上完成装修得0分 | |||
服务 方案 10% | 10 | 根据服务方案酌情打分。 | |||
3 | 设计方案10% | 10 |
根据设计方案酌情打分。 |
| |
4 | 案例10% | 10 | 为国企或中小型企业提供过相关物资;提供相应的销售合同作为佐证。 |
| |